Innovativer Arbeitsraum auf PHOENIX West in Dortmund Hörde
Zukunftsweisendes Büroensemble
Inmitten des alten Stahlwerksgeländes auf Phoenix West sind unmittelbar zwischen Warsteiner Music Hall (früher: Phoenixhalle) und dem historischem Hochofen die ersten beiden Bauteile eines zukunftsweisenden Büroensembles fertiggestellt worden. Das PhoenixWERK fügt sich selbstverständlich in die historische Umgebung ein und schafft zugleich ein repräsentatives Arbeitsumfeld für seine Nutzer. Eine nachhaltige Bauweise, modernste Technik und hochwertige Materialien sind dabei wesentliche Merkmale. Auf individuelle Wünsche und Anforderungen der Mieter und Investoren kann reagiert werden. Gastronomieeinheiten im Erdgeschoss, der begrünte Innenhof, Dachterrassen sowie eine große Anzahl an Stellplätzen sind zusätzliche Pluspunkte.
Ausstattung
Fassade: Eine charakteristische, hochwertige Klinkerfassade in Anlehnung an den historischen Bestand der Phoenixhalle. Lichtdurchflutete, flexible Raumaufteilung durch die großzügige Fensterfront.
Nachhaltigkeit: Neben einer ressourcenschonenden Bauweise nimmt die ökonomische und ökologische Betriebsweise einen besonders hohen Stellenwert ein. Mit Unterschreitung der aktuellen Energieeinsparverordnung wird daher ein KfW 70-Standard erreicht.
Zahlen und
Fakten
- Ort: Dortmund
- Bauherr: Immira GmbH | ETG B. + C. Helbich
- Nutzer: Remira GmbH | SHA
- BGF: 5.700 m²
- Realisierung: 2016 - 2020
- Leistungsumfang: LPH 1 -9 HOAI
Projektentwicklung und Masterplan
Projektleitung und Bauleitung
Planung nach der BIM-Methode
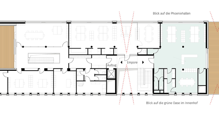
Eingang: Der Eingang ist repräsentativ und barrierefrei ausgebildet – mit einem direkten Durchgang zum gemeinsamen Innenhof.
Aufzug: Ein rollstuhlgerechter Acht-Personen-Aufzug über alle Etagen.
Räumliche Qualität: Die Gebäudetiefe beträgt 14,75 m. Die Büroräume verfügen über eine lichte Höhe von großzügigen 3,0 m. Die Nutzlast liegt bei 500 kg/m.
Achsraster: Das Rastermaß von 1,50 m erlaubt eine wirtschaftliche und vielfältige Unterteilung der Bürogeschosse an Ihre individuellen Bedürfnisse. Sie entscheiden, ob Sie Zellen-, Kombi- oder Großraumbüros wünschen.
Raumtrennwände: Die Trennwände sind doppelt beplankt für optimalen Schallschutz der Büroräume.
Natürliche Be- und Entlüftung: Das Gebäude wird über zu öffnende Fenster natürlich belüftet. Zusätzlich verfügt es über die mechanische Belüftung in Konferenz- und Besprechungsbereichen.
Sonnenschutz: Außenliegender, elektrisch betriebener Sonnenschutz. Individuell steuerbar
Schließ- und Einbruchmeldeanlage: Elektromechanisch gesteuertes Schließsystem, für die Hauptzugänge des Gebäudes mit Zutrittskontrollsystem über Karte/Chip. Die Mieteinheiten werden für ein Zutrittskontrollsystem vorgerüstet.
Elektronik: Elektrische Versorgung der Arbeitsplätze über Bodentanks. Arbeitsplatzbeleuchtung mit Rasterfeld- und Einbauleuchten. Treppenhaus- und WC-Beleuchtung wird über Präsenzmelder gesteuert. EDV- und Telefonverkabelung nach mieterseitiger Anforderung.
Kühlung: Kühlung über VFR-Anlagen (Split-Klimageräte) nach Mieterwunsch möglich. Die Installation ist bereits zentral vorgerüstet.
Heizung: Die Bürogeschosse verfügen über Fußbodenheizung, raumweise steuerbar.
Bodenbelag: Der Bodenbelag ist in Rücksprache mit dem Mieter frei wählbar. Im Mietpreis inbegriffen ist ein strapazierfähiger, hochwertiger Teppichboden aus Nadelvlies in Büro- und Flurzonen. Die Farbe kann der Mieter entsprechend dem Musterkatalog auswählen.
Decken: In den Bürogeschossen akustisch wirksame abgehängte Rasterdecken.
Sanitäranlagen: Die WC-Ausstattung wird mit optisch ansprechenden, hochwertigen Markenfabrikaten ausgestattet. Wandhängende WCs und Urinale mit Unterputz-Wandarmatur sowie wandhängende Handwaschbecken mit Einhand-Mischbatterie. Sämtliche Accessoires in hochwertiger Edelstahl- oder Chromausführung.
Teeküche: Hochwertige Teeküchen, auf Wunsch mit aufeinander abgestimmten Unter- und Oberschränken, Einbau-Küchengeräten (Kühlschrank, Mikrowelle, Geschirrspüler), Edelstahlspülbecken mit Einhand-Mischbatterie. Spritzschutz aus hochwertigen Fliesen, Bodenbelag aus Feinsteinzeugfliesen.
Werbung: Vorgesehen sind individuelle Werbemöglichkeiten im Rahmen der Gestaltungssatzung der Stadt Dortmund und die Berücksichtigung eines einheitlichen Werbekonzepts für das Gebäude.
Parken: Insgesamt stehen 154 Stellplätze im zum Ensemble gehörenden Parkhaus zur Verfügung. Diese können von den Nutzern individuell angemietet werden. 207 weitere Stellplätze sind im Parkhaus geplant.
Mit zunehmender Technisierung und Reglementierung wird auch das Bauen immer komplexer. Als Architekten koordinieren wir mit unserem ganzheitlichen Verständnis die unterschiedlichen Fachdisziplinen und führen sie als Generalplaner oder als Primus inter Pares eines integralen Planungsteams wie ein Dirigent zu einem perfekten Ergebnis zusammen.
Als Generalisten sind wir gefordert, Zielkonflikte zu erkennen und zu hinterfragen und daraus die entsprechenden Lösungen zu entwickeln. Dies sehen wir als unsere Verpflichtung gegenüber dem Bauherrn.
Das PhoenixWERK ist beispielhaft für unsere ganzheitliche Haltung und Arbeitsweise. Aus einer Vision haben wir ein realisierbares Projekt entwickelt. Mit einem klaren Konzept konnten wir die Stadt Dortmund und alle beteiligten Partner für uns gewinnen. Mit Sachverstand haben wir Hürden im Bau- und Planungsrecht, dem Schallschutz und der technischen Gebäudeausrüstung genommen. Zusätzlich haben wir als Mediatoren die unterschiedlichen Anforderungen der Eigentümer- und Bauherrengemeinschaften abgewogen und zum jeweils besten Ergebnis geführt. Und auch auf der Baustelle führen wir alle Beteiligten mit viel Disziplin und einem partnerschaftlichen Umgang.
Neugierig
geworden?
Ihr Ansprechpartner hilft Ihnen gerne weiter.
























