SHA Scheffler Helbich Architekten GmbH
Phoenixplatz 3
44263 Dortmund
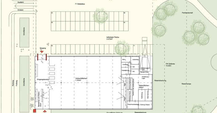
Dem prinzipiellen Zielkonflikt eines Supermarktes „auf der grünen Wiese“ begegnet der Entwurf mit der Einbettung des Baukörpers ins Erdreich und dem Verlauf der Landschaft über das Gebäude.
Gleichzeitig bildet der neue Markt zur Straße die erforderliche Raumkante, indem sich ein werbewirksamer Bügel mit dem Markenzeichen entlang der Straße aufspannt. Erst dahinter liegen die erforderlichen Parkplätze. Auch sie sind abgesenkt und werden aus der Landschaft nicht wahrgenommen.
Ökologisch stellt dieser Supermarkt eine neue Form der Nachhaltigkeit dar. Anders als die leichte Blechkiste, die sich im Sommer stark aufheizt und im Winter schnell auskühlt, besitzt der neue Supermarkt ausreichend umgebende Erdmassen, die Temperaturspitzen ausgleichen und als Massenspeicher wirken.
Zusätzlich setzt der Einsatz von Geothermie das Konzept der Erdverbundenheit fort und reduziert den Einsatz von konventioneller Energienutzung auf ein Minimum.
Phoenixplatz 3
44263 Dortmund
Sie müssen den Inhalt von reCAPTCHA laden, um das Formular abzuschicken. Bitte beachten Sie, dass dabei Daten mit Drittanbietern ausgetauscht werden.
Mehr InformationenSie sehen gerade einen Platzhalterinhalt von Turnstile. Um auf den eigentlichen Inhalt zuzugreifen, klicken Sie auf die Schaltfläche unten. Bitte beachten Sie, dass dabei Daten an Drittanbieter weitergegeben werden.
Mehr InformationenSie müssen den Inhalt von reCAPTCHA laden, um das Formular abzuschicken. Bitte beachten Sie, dass dabei Daten mit Drittanbietern ausgetauscht werden.
Mehr InformationenSie sehen gerade einen Platzhalterinhalt von Facebook. Um auf den eigentlichen Inhalt zuzugreifen, klicken Sie auf die Schaltfläche unten. Bitte beachten Sie, dass dabei Daten an Drittanbieter weitergegeben werden.
Mehr InformationenSie sehen gerade einen Platzhalterinhalt von Instagram. Um auf den eigentlichen Inhalt zuzugreifen, klicken Sie auf die Schaltfläche unten. Bitte beachten Sie, dass dabei Daten an Drittanbieter weitergegeben werden.
Mehr InformationenSie sehen gerade einen Platzhalterinhalt von X. Um auf den eigentlichen Inhalt zuzugreifen, klicken Sie auf die Schaltfläche unten. Bitte beachten Sie, dass dabei Daten an Drittanbieter weitergegeben werden.
Mehr Informationen