PhoenixWERK: Focus op component III
Voltooiing 2023
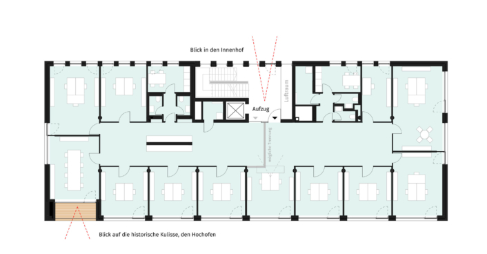
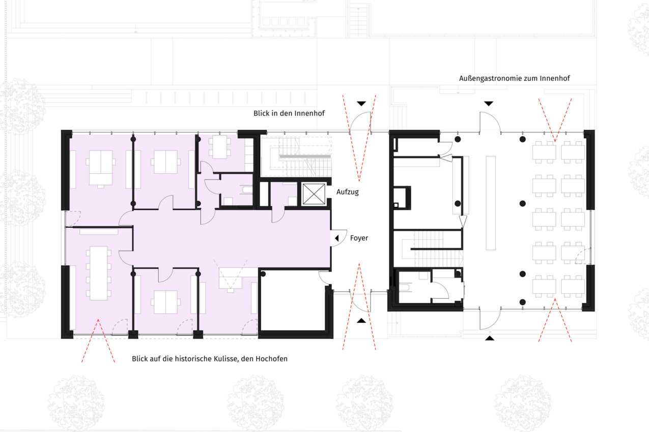
Gebouw I en Gebouw II van de PhoenixWERK waren nog maar het begin: Ons kantoor en andere bedrijven zoals REMIRA, Conresult GmbH, STAUFF, ADVIA GmbH en Bookwire GmbH zijn sinds vorig jaar hier in Phoenix West gevestigd. De bouwaanvraag voor bouwdeel III aan de Konrad-Zuse-Straße is nu ingediend. Hier worden ook moderne kantoren met ruime vergaderzalen gecreëerd. Er is ook ruimte voor nog meer catering.
Onze “campus” in de Ruhr-metropool Dortmund groeit daarom – de voltooiing is gepland voor 2023. De visualisatie laat zien hoe het er hier binnenkort uit zal zien. Gedetailleerde informatie vindt u al op phoenixwerk.de en in onze exposé (PDF-download). We kijken uit naar uw aanvraag!
Nieuwsgierig?
Uw contactpersonen helpen u graag verder.












