SHA Scheffler Helbich Architekten GmbH
  • Nederlands
    • English
    • Français
    • Deutsch
    • Polski
    • Português
    • Español
  • Kantoor
    • Ons team
    • Diensten
      • Algemene planning
      • Begeleiding
      • Analyse & concept
      • Planning en coördinatie
      • Realisatie
      • Nazorg
    • Locaties
    • Filosofie
    • SHA toen en nu
    • Prijzen en onderscheidingen
  • Projecten
    • Projecten
    • Handel
    • Stadions & sportfaciliteiten
    • Industrie en logistiek
    • Kantoor & Administratie
    • School & Onderwijs
    • Mobiliteit en transport
    • Accommodatie & Catering
    • Cultuur & Evenement
  • Laatste nieuws
    • Laatste nieuws
    • SHA op sociale media
    • Downloads
  • Carrière
    • SHA als werkgever
    • Vacatures
    • Ongevraagde aanvraag
  • Neem contact met ons op
  • Verantwoordelijkheid
  • Nederlands
    • English
    • Français
    • Deutsch
    • Polski
    • Português
    • Español
  • Menu Menu

Voorbeeldontwerp voor kleedkamers in modulaire constructie

Haalbaarheidsstudie

Wij hebben een modulair systeem voor functionele gebouwen ontwikkeld dat aan individuele vereisten kan worden aangepast om op een kosteneffectieve en beheersbare manier aan de verschillende vereisten van sport en clubs te voldoen. Door afzonderlijke moduletypes te combineren – zoals kleedkamers, sanitaire voorzieningen of opslag- en technische ruimtes – kunnen oplossingen op maat worden gecreëerd uit gestandaardiseerde elementen.

Tijd en kosten kunnen hier worden geoptimaliseerd door houtskeletbouw, type statica en prefabricage van bijv. sanitaire elementen. Tegelijkertijd maakt de modulaire familie het mogelijk om de functionele gebouwen aan te passen, bijvoorbeeld door de gevels en toegangszones in de respectievelijke clubkleuren te ontwerpen.

Cijfers en
Feiten

  • Klant: Sport- en vrijetijdsdiensten Stad Dortmund

  • Gebruikers: SV Arminia Marten en SF Brackel

  • Door SHA verleende diensten: Haalbaarheidsstudie 2019

  • Plaats: Dortmund

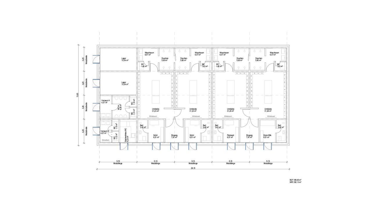
Modulsystem Beispiele
Vereinstrakt Ansicht Ost Nord
Perspektive Umkleidegebäude
Schultrakt Ansicht West Nord
Schultrakt Grundriss M 1 100
Vereinstrakt Grundriss M 1 100
Vereinstrakt Ansicht West Süd
Lageplan M 1 500
Module Arminia Marten

Nieuwsgierig
worden?

We vertellen u er graag meer over.

SHA Scheffler Helbich Architekten GmbH

Phoenixplatz 3
44263 Dortmund

T +49 (231) 44 20 200
E info@sha.de

    Ik wil graag contact opnemen met SHA Scheffler Helbich Architekten GmbH en heb het privacybeleid gelezen en geaccepteerd.

    facebookfacebook-messengermailxinglinkedintwitterwhatsapp
    Luzern · Cécile-Lauber-Gasse 4 · 6004 Luzern · +41 79 303 28 06
    Dortmund · Phoenixplatz 3 · 44263 Dortmund · +49 (231) 44 20 20 0
    Berlin · Erkelenzdamm 59-61 · 10999 Berlin · +49 (30) 23 32 75 70
    Gegevensbescherming Afdruk
    • Planbureau in Dortmund
    • Architectenbureau in Berlijn
    • Nederlands
      • English
      • Français
      • Deutsch
      • Polski
      • Português
      • Español
    Scroll naar bovenzijde